
Saját ingatlanok

Phone
Hours
Monday - Friday: 9AM - 5PM
Sat: 9AM - 1PM
Sunday: Closed
Forduljon hozzám bizalommal!
Javaslom, hogy az első lépés egy piaci árelemzés kérése legyen, amit örömmel és díjmentesen elkészítek. Mindig a jelenlegi trendeket figyelembe véve állapítom meg ingatlana piaci értékét. A részletekért keressen bizalommal.
Ingatlanok
Nem található eredmény
Bécs
1800 €/hó
Lokáció: Bécs, Hietzing
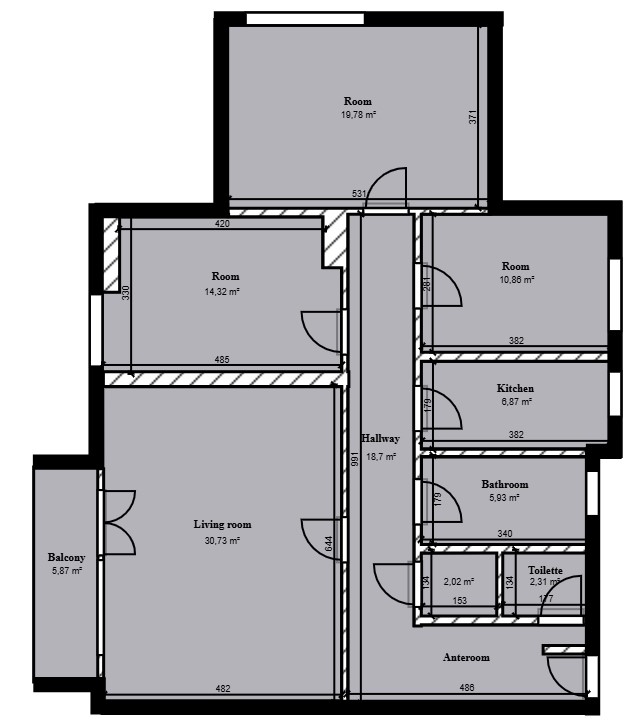
Méret: 117,7 m²
Szobák száma: 4 szoba (nappali + 3 hálószoba)
Ár: 1800 €/hó
Típus: Tégla építésű lakás
Kiadó egy újonnan felújított, három hálószobás lakás Hietzing szívében, a Lainzer Straße-ban, panorámás kilátással a Wienerwaldra! A tágas, 117,7 négyzetméteres ingatlan három hálószobával, egy nagy nappalival, külön konyhával és két fürdőszobával rendelkezik. Ezenkívül egy, a nappaliból megközelíthető erkéllyel egészül ki, ahonnan lenyűgöző kilátás nyílik a környező épületekre és a zöldövezetre. A lakáshoz egy saját pince is tartozik.
Az ingatlant újonnan felújították, és energiatakarékos ablakokkal látták el. A lakás nem bútorozott, kivéve a teljesen felszerelt konyhát. Továbbá saját, független fűtési rendszerrel rendelkezik.
Az elhelyezkedése kiváló: Hietzing központjában található, mindössze néhány száz méterre a Schönbrunni kastélytól, az állatkerttől és a Pálmaháztól. Élelmiszerüzletek, kávézók és éttermek szintén sétatávolságra vannak. A tömegközlekedés kitűnő: könnyen megközelíthető a Braunschweiggasse-nál található U4-es metróvonal, a 10-es, 60-as és 52-es villamosvonalak, valamint a Kennedybrückénél található közlekedési csomópont.
Bérleti díj:1800 euró/hó, beleértve a közös költséget
Kaució: 3 havi bérleti díj
Rezsi: Fogyasztás alapján

